Oficina en Alquiler, Los Próceres

US$ 1,108/Mes

Anuncio #1417059. Este anuncio se ha visitado 2 veces.
Alquiler: US$ 1,108/Mes
1 parqueos

Financiamiento

Cuotas desde RD$ - / mes
RD$ - de inicial *estimado

Datos Generales

Santo Domingo Centro > Los Próceres
Segundo Uso Comercial
40 Mt2 0 Mt2
3 2
No N/D

Comodidades:

  • 1/2 Baño
  • Ascensor
  • Cisterna
  • Planta Eléctrica
  • Seguridad 24 Horas

Más Fotos

Observaciones:

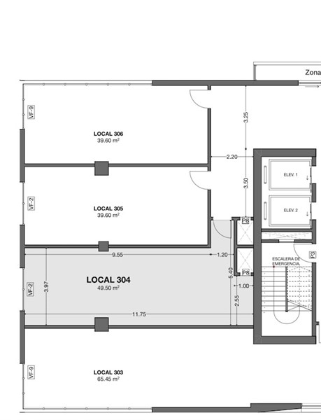
ALQUILER OFICINAS NUEVAS TORRE EMPRESARIAL VIEJO ARROYO HONDO A MINUTOS AGORA MALL Sobre la Avenida de Los Proceres frente al Botánico, en moderna Torre Corporativa de fácil acceso y salida te ofrecemos estas dos opiciones de alquiler para TU oficina. ? Dos (2) locales adjuntos que pueden alquilarse unidos o separados. ? 39.60 m2 cada uno, sumando 79.60 m2 en total si los alquilas los 2 ? Frentes en cristal vista a pasillo ? Espacios abiertos para que puedas dividirlos a tus requerimientos ? Ventanales que te garantizan buena iluminación ? Pisos en porcelanato ? 1 parqueo techado por local + parqueos de vista con tarifa de pago La Torre te ofrece ? Lobby climatizado con control de acceso digitalizado y vigilancia 24 horas ? Cocina fría y comedor de empleados ? Salón de conferencia común ? Terraza común para actividades empresariales ? Baños comunes por nivel para damas y caballeros ? Elevadores ? Planta electrica ? Parqueos de visita con tarifa de pago Precio alquiler un solo local: US$23 el m2 (39.60 m2 X 23) = US$910. + Mant. (US$5 x 39.60) = US$198.00 Precio total por un solo local : US$1,108.00 mant incluido + itbis. Precio alquiler por los 2 locales juntos: US$23 x m2 (79.20 m2 x 23)= US$1,821.60 + Mant (US$5.00 x 79.20 m2 ) =US$396 Precio total de alquier por los 2 locales – US$2,217.60 mant. Incluido + itbis ID: EB-TF9378 Mas imágenes en : https://www.hazimrodriguez.com/property/local-oficina-en-torre-corporativa-en-avenida-de-los-proceres-viejo-arroyo-hondo Siguenos en instagram: https://www.instagram.com/inmobiliariahazimrodriguez/

Inmobiliaria

Inmobiliaria Hazim Rodriguez

Inmobiliaria

Agente

Belkis Hazim


«
»
x

Solicitar Más Información

Completa el siguiente formulario para ser contactado por el vendedor.

Debes hacer click en el cuadro "no soy un robot", y en caso que se le solicite, contestar la pregunta de seguridad.